

为响应《全国足球场地设施建设规划(2016-2020年)》提出的“充分利用公园绿地等拓展足球场所”的要求,拟在京港澳高速东辅道绿化带内以土地租赁形式修建足球场。我集团严格遵守国家法律法规的要求,遵守市场公平公正的原则,拟对该项目进行整体招租。
一、项目区位及基本情况
长沙高铁会展新城(高铁)片区位于长沙市东南部、浏阳河畔,规划范围北至浏阳河及黄花机场高速公路、东至长沙县黄兴大道、南至湘府东路、西至京港澳高速公路,总用地面积46.9平方公里。以浏阳河为轴,分为高铁片区和会展片区。高铁会展新城是中国高铁干线京广、沪昆十字交汇的国家级交通枢纽,通过中低速磁浮与黄花国际机场实现空铁联运。
作为湖南对外开放的重要平台、长沙东部开放型经济走廊和临空经济示范区的重要组团,长沙高铁会展新城坚持以高铁枢纽和会展产业为双引擎,突出以五大系统(立体交通系统、城市慢行系统、城市呼吸系统、综合管廊系统、会展产业系统)建设为重点,致力于建成“五大理念先行区、开放崛起新高地、品质长沙新标杆”,打造国际中高端会议承办地和现代服务业聚集新区。
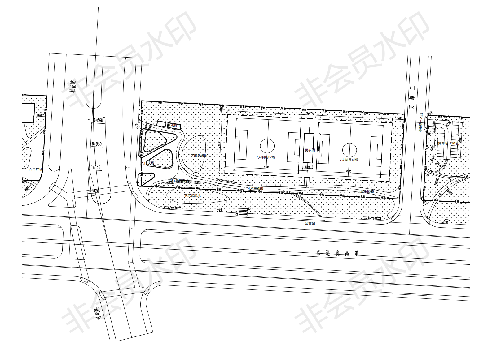
该项目拟于高铁片区京港澳高速东辅道绿化带N03-E22(24.13亩)和N04-H02(46.55亩)地块内约24亩公园绿地(香樟路南北侧)建设人工草地足球场(十一人制、七人制及五人制球场)。



二、租赁期限及租金控制价
1、租赁期限为10年;
2、租金最低控制价按照评估结果为1.63万元/亩, 年递增率4%。
三、响应人资质条件
(一)截止2020年6月12日,在中华人民共和国境内依法注册的企业法人。
(二)公司运营状况和财务状况良好;
(三)守法经营,诚实守信,有依法纳税和缴纳社会保障资金的良好记录,无不正当竞争行为,无违反国家规定,损害职工权益的不良记录,银行信用良好,无不良贷款记录,无拖欠长沙市武广新城开发建设有限责任公司款项记录。
(四)具有健全的管理制度和组织架构,具有相应的管理人员和专业技术人员。
(五)举办过国际青少年足球邀请赛及其他赛事的企业优先。
四、资格审查及报价方式
(一)采用资格后审方式;
(二)本项目采用公开报价方式,报名者现场以密封形式一次报价,以价格最高者确定承租方,低于底价或无人竞价按流标办理。
五、报名、报价的时间和地点
(一)报名日期:2020年6月15日起至2020年6月17日17∶00时前(节假日除外);
(二)报名时间:报名时间每天上午8:30-11:30,下午14:00-17:30(北京时间);
(三)报名地点:长沙高铁新城管理委员会长沙市武广新城开发建设有限责任公司经营开发部办公室(C-107);
(四)报名参与须提供以下资料:
1、企业法人营业执照原件及加盖公章和法定代表人印章的复印件;
2、法定代表人授权委托书及被委托人身份证原件和复印件;
3、项目建设及运营基本概念方案;
4、报名联系人:毛国亮,联系电话:13787226332。
(五)报价时间:2020年6月18日上午9:00;
(六)报价地点:长沙高铁新城管理委员会长沙市武广新城开发建设有限责任公司小会议室(C-109)。
六、招租文件的澄清与答疑
(一)本项目不组织答疑会和现场踏勘。
(二)意向单位若对该项目有任何疑问,应于2020年6月16日17:00时(含)前以书面形式(经法定代表人签字或盖章,并加盖单位公章)递交至报名地点。
七、其他事宜
(一)报名资料逾期送达的或者未送达指定地点的或者未密封的将予以拒收;
(二)报价未密封的作废标处理;
(三)报价以单价(XX万元/亩/年和递增率)结合10年租期每年租金和10年总租金形式,若总价和单价不符以单价为准;
(四)有关本次招商任何违规违法行为可向以下部门举报:
监督人:长沙市轨道交通集团集团有限公司监事会
联系电话: 0731-86850999
本招租公告最终解释权归长沙市武广新城开发建设有限责任公司所有。