

再深耕,再广拓,夯实经营开发蓝图。11月21日,置业公司与长沙市万科联合控股的长沙轨道万科置业有限公司,以10.38亿元成功竟得[2022]长沙市073号地块。该地块为开福区核心地块,是置业公司在长沙拿下的第十宗优质地块,为公司开福区版图再添新子。

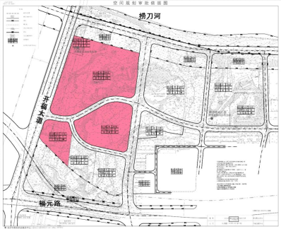
开福区的073号宗地,位于开福区浏阳河街道,东至洪山路,南至福元路,西至长阴路。项目目前处于供货空白带,为23万方大体量地块,周边有史家坡小学,另地块内部配套一所小学。
宗地总面积为143317.47平方米,出让面积为76846.72平方米(约115.27亩),另有规划路幅面积为20445.20平方米、社会停车场用地面积为11304.88平方米、服务设施用地面积为2846.15平方米、公园绿地面积为30177.91平方米、防护绿地面积为1696.61平方米,其中规划路幅、社会停车场用地、服务设施用地、公园绿地、防护绿地面积均不计入出让面积。容积率≤3.0,总计容面积为23.05万平方米。

与城市共生长,与生活共美好。公司坚持远瞻城市发展规划,稳步扩张,坚持与城市共向上的布局策略,已在长沙匠心打造万科地铁?天空之境、长沙轨道中建·麓江府等层次丰富的质感人居,助力升级城市人居。本次拿地将加速公司市场化运作,推动高质量发展,助力公司市场化转型的战略布局,也将助力城市不断向上向前,焕发更多生机,圆满更多关于生活的美好想象。